PLANTAS DE CASAS COM SUÍTES

Publicado em: Casa
data 15.07.2013

PLANTAS DE CASAS COM SUÍTES – Antes de comprar uma residência, seja casa ou apartamento, muitas pessoas gostam de ver as plantas dos possíveis locais que poderão tornar-se seu lar, fazendo com que todos os cômodos sejam corretamente avaliados para verificar o tamanho e as condições que o ambiente apresenta, julgando ser, ou não, favorável para cada tipo de família ou indivíduo em questão que está a procura do local perfeito.

PLANTAS DE CASAS COM SUÍTES

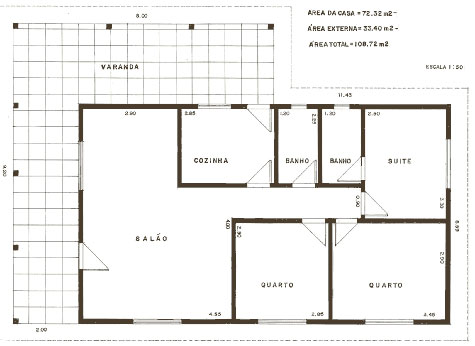
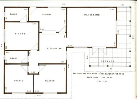
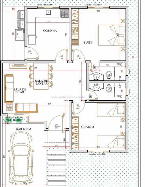
As suítes são pontos que devem ser observados nas plantas de casas, sendo que as mesmas podem definir, ou não, a decisão de compra de um determinado local, fazendo com que os indivíduos procurem por ambientes maiores ou menores, além de um determinado número de quartos com banheiro.

As plantas de casas com suítes podem ser encontradas com corretores que podem lhe oferecer os desenhos, fazendo com que todos os possíveis compradores possam visualizar toda a estrutura encontrada em cada uma das casas ou apartamentos que deseja-se adquirir.

Os corretores podem ser encontrados em plantões, normalmente localizados onde o empreendimento será construído, porém caso o mesmo já estiver pronto, é possível encontrar locais de venda nas mais diversas imobiliárias, procurando pelo empreendimento em questão ou solicitando que os profissionais mostrem-lhe todas as estruturas que adéquam-se melhor às suas necessidades e desejos.

Há as mais diversas plantas de casas com suítes, sendo que a estrutura de cada uma delas pode, ou não, variar, inclusive dependendo do número de suítes que determinado empreendimento possui, normalmente havendo disponível a quantidade no próprio informativo ou podendo visualizar o número de acordo com a planta em mãos.

Algumas plantas de casas com suítes são distribuídas para os clientes em um pequeno folder, porém outras somente podem ser vistas em um tamanho favorável no estabelecimento que comercializa a residência em questão, devendo solicitar aos profissionais especializados e responsáveis pelo comércio do empreendimento.

O número de suítes que cada uma das casas contém pode fazer com que o preço das mesmas variem, normalmente fazendo com que os quartos normais sejam mais em conta que cômodos que possuem banheiro, ou seja, é necessário verificar a quantidade nas plantas para possuir uma ideia de quanto será investido.

Leia o post anterior:
PAGSEGURO ENTRAR LOGIN
PAGSEGURO LOGIN, ENTRAR, ACESSAR CONTA

PAGSEGURO UOL LOGIN, ENTRAR, ACESSAR CONTA - O sistema que foi lançado no ano de 2007 revolucionou as formas de...

Fechar